Het toepassen van slimme lichtsturing

 

Slimme lichtsturing in gebouwen wordt gerealiseerd door een gedetailleerd proces. Dit proces bestaat uit zes duidelijke stappen, van inventarisatie tot aftersales. Het doel hierin is om aan alle wensen en eisen van het project te voldoen en een optimale lichtbeleving te garanderen. Lees verder in dit artikel hoe slimme lichtsturing geïmplementeerd wordt.

Maas Hagoort

1. Lichtontwerp

Tijdens het lichtontwerp maken wij een lichtplan dat voldoet aan alle eisen en normen. Het lichtplan is een gedetailleerd ontwerp dat de positionering en specificaties van verlichting in een ruimte of gebouw beschrijft. Daarbij worden de gewenste instellingen voor het lichtmanagementsysteem bepaald. Denk hierbij aan hoe lang een ruimte leeg moet zijn voordat de verlichting wordt gedimd of uitgeschakeld. Dit zorgt voor een efficiënte en energiezuinige lichtsturing, afgestemd op de specifieke behoeften en gebruikspatronen van de ruimte.

Maas Hagoort

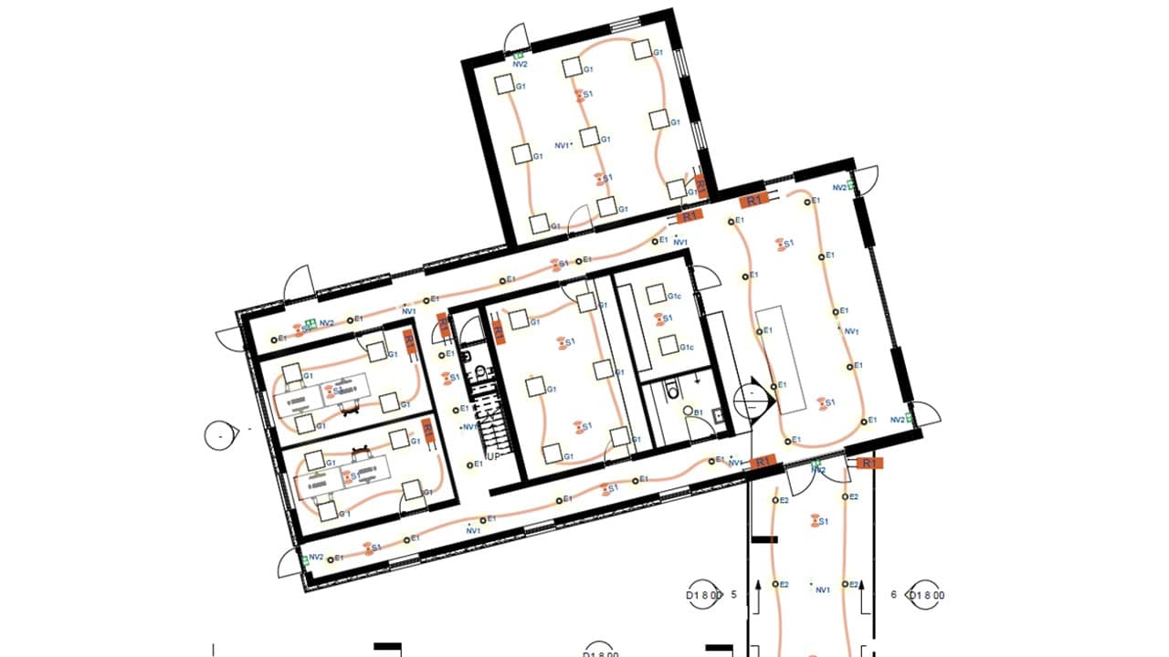
Bovenstaande afbeelding toont een voorbeeld van een controlsplan

2. Lichtoplossing

Een onderdeel van het lichtplan is het controlplan, waarin wij sensoren en schakelaars in het lichtplan tekenen. Een salesengineer selecteert hierbij de armaturen, sensoren en de schakelaars passend bij uw projectaanvraag. Indien er sprake is van een bestek onderzoeken wij altijd budgetvriendelijke alternatieven in een armaturenvergelijk. Vervolgens wordt de positie van armaturen en sensoren bepaald met een gedetailleerde lichtberekening in DIALux EVO. De berekende posities worden exact aangegeven doormiddel van aangemaakte pictogrammen op de projecttekeningen. Ook tekenen onze experts een gedetailleerd snoerenplan op basis van uw projectplannen en specificaties. Hierbij worden alle armaturen en sensoren voorzien van een unieke code, die later terugkomt in de offerte en het armaturenboek.

3. Offerte

Na goedkeuring van het lichtontwerp stellen wij een kostenraming of offerte op. Bij het opstellen van een offerte wordt ook de kosten voor de programmering meegenomen. Aanvullende diensten zoals het snoerenplan, de montage en garantieverlening worden eveneens met u besproken. Wanneer de offerte compleet gemaakt is, wordt er altijd een armaturenboek bij opgemaakt.

Maas Hagoort

4. Programmering

Om maximale efficiëntie te garanderen, leveren wij gecodeerde en vooraf geassembleerde onderdelen via just-in-time leveringen.

Daarnaast verzorgen wij in een Casambi-gestuurd project altijd de volledige programmering van uw lichtsturing. Dit omvat het configureren van het netwerk en de lichtscènes volgens uw specificaties. Hierbij passen wij de intensiteit, kleur, beweging, tijdschakeling en daglichtregeling aan. Door onze zorgvuldige aanpak minimaliseren wij verstoringen in het primaire proces en garanderen we een optimale lichtbeleving voor de gebruiker.

5. Aftersales op afstand

Na de programmering van de verlichting stopt het voor ons niet. Een project goed opleveren en monitoren is voor ons belangrijk. Ons doel is dan ook het lichtmanagementsysteem optimaal te benutten. Zo voorzien wij in gebruikersinstructies over de bediening en aansturing van de verlichting. Bovendien kunnen wij de programmering op afstand bijstellen. Ons team van support medewerkers staat daarom dagelijks voor u klaar.

Ontdek nu welk lichtmanagementsysteem het beste bij uw project past. Neem contact op voor een persoonlijk advies.

Mohamed Chakouath
Projectmanager België

Als sales engineer ben ik dagelijks bezig met het creëren van lichtoplossingen. Hiervoor ontwerp ik lichtplannen binnen de meest uiteenlopende installatieprojecten. Ik begeleid u graag van aanvraag tot en met oplevering.